【中古一戸建て】
【相模原市緑区<原宿>4SLDK】北東角地/敷地面積36坪/陽当り良好/2011年築/LDK15帖/収納豊富/都市ガス/生活便良好
4/30 新価格2,780万円に変更しました!
- 価格
- 2,780万円
- 所在地
- 相模原市緑区原宿1丁目
- 土地面積
- 121.06m2(36.62坪)
- 建物面積
- 94.39m2(28.55坪)
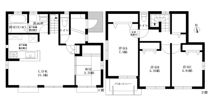
- 間取り
- 4SLDK
- アクセス
- JR横浜線・相模線・京王相模原線「橋本」バス11分「森の上」 停歩3分、JR横浜線「相原」徒歩28分
■北東角地
■敷地面積36坪
■陽当り良好
■南側隣地が駐車場で開放感あり
■カースペース1台可
■LDK15.5帖+和室3.75帖の広々空間
■全居室南向きで明るいお部屋
■全居室収納付き収納豊富設計
■都市ガス
■スーパー・病院・施設など近く生活便良好
☆川尻小学校学区内
☆相模丘中学校学区内
周辺環境
- コンビニ・スーパー
- ファミリーマート 相模原東原宿店near_me
- コンビニ・スーパー
- TAIRAYA城山店near_me
- 学校
- 相模原市立相模丘中学校near_me
- 学校
- 相模原市立川尻小学校near_me
- 幼稚園・保育園
- 相模野幼稚園near_me
- 幼稚園・保育園
- げんきっず城山保育園near_me
- 病院
- 相原病院near_me
- その他
- サンドラッグ 城山店near_me
- その他
- JA神奈川つくい 原宿支店near_me
- その他
- 相模原相原郵便局near_me
詳細情報
土地
- 地目
- 宅地
- 用途地域
- 第一種低層住居専用地域
- 土地の権利形態
- 所有権
- 地勢
- 平坦
- 都市計画
- 市街化区域
- 接道状況
- 北側 5.0m 公道、東側 4.0m 公道
建物
- 建ぺい率・容積率
- 50%・80%
- 構造・工法
- 木造2階建
- 築年月
- 2011年10月
- 駐車場
- 1台可
設備
- 上水道
- 公営水道
- 下水道
- 公共下水
- ガス
- 都市ガス
- 設備
- 【キッチン】
カウンターキッチン、3口以上コンロ、床下収納
【バス・トイレ】
バス1坪以上、追焚機能、浴室暖房、浴室乾燥機、浴室窓、シャワー付洗面化粧台、温水洗浄便座、トイレ2ヶ所
【その他】
全居室収納、クローゼット、複層ガラス、24時間換気システム、ダブルロックドア、ディンプルキー、モニター付インターホン、シャッター雨戸、火災警報器、外壁サイディング
その他
- 現況
- 居住中
- 引渡日
- 相談
有限会社長瀬建設


