【中古マンション】
【相模原市緑区<橋本>ミオカステーロ橋本 15F】駅徒歩6分/最上階/角部屋/陽当り・眺望良好/ペット可/LDK19帖/利便性良好
3/9 新規物件追加しました!
- 価格
- 9,600万円
- 所在地
- 相模原市緑区橋本3丁目
- 建物面積
- 89.32m2(27.01坪)
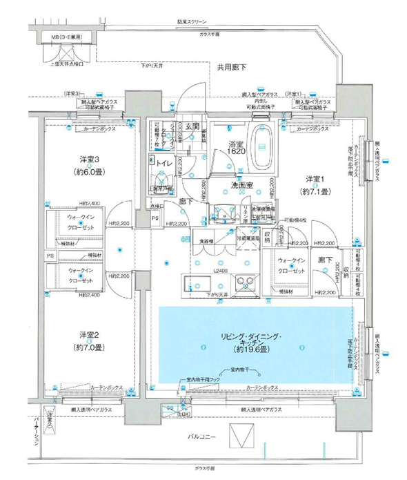
- 間取り
- 3LDK+3WIC
- アクセス
- JR横浜線・相模線・京王相模原線「橋本」徒歩6分
■橋本駅より徒歩6分
■2駅3路線利用可で利便性良好
■最上階(15階)につき眺望良好
■南向き角部屋で陽当り良好
■ペット飼育可(細則あり)
■LDK広々19.0帖
■各居室にW.I.Cあり
■玄関にS.I.Cあり
■全窓ペアガラス
■オートロックあり
■都市ガス
■2021年1月築
■近隣商業施設多数で生活便良好
■小・中学校まで徒歩15分圏内
☆宮上小学校学区内
☆旭中学校学区内
周辺環境
- コンビニ・スーパー
- ミニストップ 相模原橋本4丁目店near_me
- コンビニ・スーパー
- ミウィ橋本near_me
- 学校
- 旭中学校near_me
- 学校
- 宮上小学校near_me
- 幼稚園・保育園
- 相模原みどり幼稚園near_me
- 幼稚園・保育園
- 高見保育園near_me
- 病院
- 橋本クリニックnear_me
- その他
- ドン・キホーテ SING橋本駅前店near_me
- その他
- イオン橋本店near_me
- その他
- アリオ橋本near_me
詳細情報
土地
- 地目
- 宅地
- 用途地域
- 近隣商業地域
- 土地の権利形態
- 所有権
建物
- 構造・工法
- 鉄筋コンクリート造地上15階建15階部分(総戸数:41戸)
- 築年月
- 2021年(令和3年)1月
- 駐車場
- 駐車場(空無):11,000~12,000円/月(2年毎抽選制)、駐輪場あり
- 施工会社名
- 山田建設㈱
設備
- 上水道
- 公営水道
- 下水道
- 公共下水
- ガス
- 都市ガス
- 設備
- システムキッチン、食洗機、3口ガスコンロ、ユニットバス、浴室換気乾燥機、洗面化粧台、トイレ、室内洗濯機置場、全室フローリング、W.I.C、S.I.C、複層ガラス、モニター付オートロック(カードキー)、宅配ボックス、バルコニー(面積:18.22㎡)、エレベーター
その他
- 現況
- 空室
- 引渡日
- 即時
- 備考
- 管理費 :13,400円/月
修繕積立金:13,400円/月
ハイセレクト使用料:1,430円/月
町内会費 :400円/月
管理形態 :全部委託
管理方法 :日勤
管理会社 :㈱エム・シー・サービス
有限会社長瀬建設










